This collection of images asks us to acknowledge our complicit role in systemic racism through our dependence on plastics and petroleum.

For more than fifty years, the community of Alsen has been caught in an environmental discrimination struggle that disproportionately burdens it with pollutants that nearby white communities are protected from. High cancer rates, asthma, birth defects, stillbirths, and miscarriages continue to plague the community. These symptoms are directly linked to toxins released from the 25 facilities surrounding Alsen.

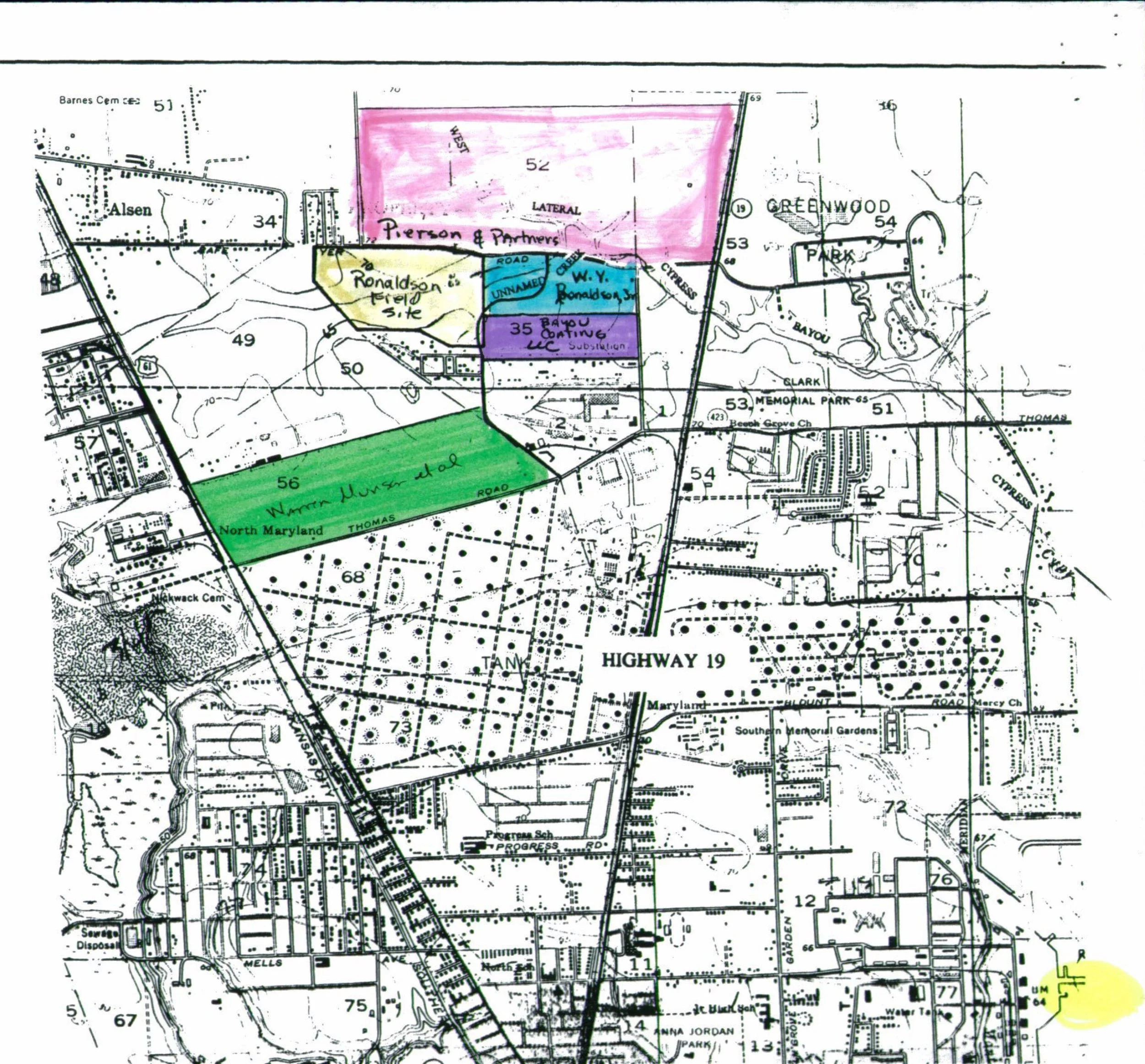
Within a four-mile radius surrounding Alsen there are:

  • 11 petro checmical plants

  • 3 superfund sites

  • 5 hazardous waste pits

  • 2 city garbage dumps

  • 3 privatley owned waste facilities

Many of the historic African American neighborhoods along the 140 mile Cancer Alley petrochemical corridor were developed after the Civil War when the government established small land grants to former slaves working on sugar cane plantations along the Mississippi River. Alsen was established in 1872 by the Freedmen's Bureau as an agrarian community on the outskirts of Baton Rouge, Louisiana.

FULCRUM OF MALICE

In the 1950’s, the Baton Rouge city parish council voted to rezone the farm land around Alsen from Agriculture to Industry. The rezoning faced little opposition since there were very few registered voters in Alsen at the time and no elected officials of color in the parish. 

In 1976, strong odors from the Rollins Environmental Services hazardous waste disposal facility began affecting the quality of life across the street in Alsen. People living there were plagued by breathing problems, headaches, chronic fatigue, and spontaneous nose bleeds. Shell, Exxon, and Dow were some of the eleven petrochemical companies using the dump to offload toxic waste from nearby chemical plants. Residents filled a class action lawsuit, McCastle vs. Rollins Environmental Services. This seminal case signaled the beginning of an environmental justice movement where communities affected by industry pollution were empowered to fight back against corporations that neglected their safety and welfare.

In Alsen victory is often followed by setbacks as communities are forced to fight over and again to protect themselves from the constant threat of new petrochemical facilities. In 2002, Clean Harbors purchased the Rollins property and began operating a new hazardous waste storage, treatment, and disposal facility in the same location that first made residents sick. The site currently receives toxic waste from across the south-central United States. Clean Harbors has been cited for the release of nineteen toxic chemicals into the air including known carcinogens, formaldehyde, and benzene.

St John Baptist Church was originally located next to the Rollins Toxic Waste Dump. After the lawsuit, the church raised funds to purchase land in Alsen on a piece of property that includes a large picnic area, barbecue, basketball court, and playground. Shortly after the new church opened its doors, a landfill opened next door and began accepting construction debris waste within 100 yards of the playground and basketball court that had just been built. Since then, most Sunday morning services are overtaken by the stench of the landfill.

The construction debris landfill which opened in 1999 in the center of Alsen is just 300 feet from inhabited dwellings and less than one-thousand feet from a church, community center, and daycare center. Residents have been forced to deal with an infestation of rats, termites, and snakes on their property and inside their homes. Citizens regularly complain of strong odors, particularly at night, often making it difficult to sleep. There have been five reported fires at the dump. These fires are particularly dangerous because they emit fumes from the combustion of a wide range of toxic materials buried in the landfill. The landfill has been cited numerous times for, illegal dumping of hazardous material, erosion problems and unsatisfactory surface water runoff management.

Dust emissions are also a huge problem. The Environmental Protection Agency warns of potential danger from construction and demolition waste, due in part to the fact that construction dust is particulate matter that is difficult to breathe especially if you are very young or old or have breathing problems already. There are also concerns that rotting dry wall emits dangerous levels of dioxin into the air.

Alsen has become a “Sacrifice Zone” a term used by environmental justice advocates to describe communities surrounded by pollutants.

 

These neighborhoods bear the burden of our collective dependence on the gas we put in our car, the trash we discard. They suffer from the toxins emitted in the making of products we use everyday including batteries, cosmetics, paint, caulking, insulated glass, bathroom tiles, wood working adhesives, glue sticks, scotch tape, masking tape, bookbinding adhesives, automotive hoses, belts, seals, tires, and bumpers.